文章來源:
北京創聯匯通電氣 ????? 發布時間: 2019-05-17 10:06:05
導讀:干式三相變壓器 簡述 本系列產物采取薄層環氧樹脂澆注來包封高、高壓繞組的干式變壓器,設想公道,工藝進步前輩,部分放電量小、樂音低,具有阻燃、自熄、防潮、散熱性好,免保
干式三相變壓器
|
簡述 |
本系列產物采取薄層環氧樹脂澆注來包封高、高壓繞組的干式變壓器,設想公道,工藝進步前輩,部分放電量小、樂音低,具有阻燃、自熄、防潮、散熱性好,免保護,無凈化等特性。
鐵芯及夾件概況經防護樹脂特別處置,形狀美妙。高壓箔繞,高壓采取分段多層圓筒式布局,使之安匝散布均衡,漏磁小,機器強度高,抗短路才能強。
設置裝備擺設的低樂音冷卻風機及智能溫控儀使產物具有毛病、超溫報警、啟停庇護,并可實施微電腦長途監控功用。
美妙耐用的不銹鋼外殼,對變壓器作進一步的寧靜庇護,防護品級達IP20及IP23。★IP20可防直徑大于12m固體導物進入,為帶電部門供給寧靜樊籬; ★:Ip23兼具避免與垂直線成60℃角之內的水滴進入,可于戶外運轉,但Ip23外殼會使變壓器冷卻 才能降落,容量較小的降落約5%,容量較大的約10%。別的,可供給設想其他防護品級或質料的庇護外殼。該系列變壓器可直 接安裝于負荷中間,合用于高層修建、機場、船埠、電廠、室第小區或成套變電站等各類場合。 |
|
執行的標準 |
GB6450-1986 GB/T10228-1997
GB/T1094-1996 GB4208-1993
根據用戶要求可提供在特殊使用條件下運行的變壓器。 |
|
型號及代表意義 |
 |
|
一般使用條件 |
1.海拔高度不跨越1000m 戶內
2.情況溫度:較高氣溫+40℃
3.較高日均勻氣溫+30℃
4.較高年均勻氣溫+20℃
5.較低氣溫-5℃ |
|
外部尺寸 |
 |
|
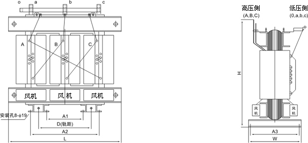
SC(B)10-30~2500/10-0.4外形尺寸圖 |
 |
|
SC(B)10系列保護外殼外形尺寸示意圖 |
|
主要技術參數 |
|
10kV級S9系列 |
額定容量
(kVA) |
電壓組合(kV) |
聯結
組
標號 |
短路
阻抗
(%) |
損耗(kW) |
空載
電流
(%) |
重量
(kg) |
外形尺寸(mm)
長(L)×寬(B)×高(H) |
規矩(mm)
縱向×橫向 |
保護外殼尺寸(mm)
長(L)×寬(B)×高(H) |
高
壓 |
分接
范圍 |
低
壓 |
空
載 |
負
載 |
|
30 |
11
10.5
10
6.3
6 |
±5%
或
±2×
2.5% |
0.4 |
Yyn0
或
Dyn11 |
4.0 |
0.215 |
0.750 |
3.2 |
320 |
780×450×700 |
400×400 |
900×900×1030 |
|
50 |
0.305 |
1.055 |
2.8 |
360 |
840×450×720 |
1000×900×1050 |
|
80 |
0.415 |
1.460 |
2.6 |
520 |
900×600×840 |
550×550 |
1060×1000×1150 |
|
100 |
0.450 |
1.665 |
2.4 |
670 |
920×600×860 |
1080×1000×1170 |
|
125 |
0.530 |
1.995 |
2.2 |
760 |
980×600×860 |
1140×1000×1200 |
|
160 |
0.610 |
2.250 |
2.2 |
880 |
1040×710×980 |
660×660 |
1240×1050×1260 |
|
200 |
0.700 |
2.675 |
2.0 |
1030 |
1070×710×1000 |
1270×1050×1290 |
|
250 |
0.810 |
2.915 |
2.0 |
1190 |
1140×710×1030 |
1340×1050×1330 |
|
315 |
0.990 |
3.670 |
1.8 |
1360 |
1180×710×1100 |
1360×1050×1390 |
|
400 |
1.100 |
4.220 |
1.8 |
1740 |
1380×960×1160 |
820×910 |
1540×1150×1590 |
|
500 |
1.305 |
5.165 |
1.8 |
1900 |
1400×960×1200 |
1570×1150×1640 |
|
630 |
1.510 |
6.220 |
1.6 |
2050 |
1440×960×1240 |
1610×1150×1680 |
|
630 |
6 |
1.460 |
6.310 |
1.6 |
2050 |
1500×960×1200 |
1660×1150×1630 |
|
800 |
1.710 |
7.360 |
1.6 |
2330 |
1500×960×1280 |
1680×1150×1720 |
|
1000 |
1.990 |
8.600 |
1.4 |
2790 |
1640×960×1410 |
1750×1200×1850 |
|
1250 |
2.350 |
10.260 |
1.4 |
3300 |
1700×1255×1450 |
1070×1205 |
1850×1400×1920 |
|
1600 |
2.755 |
12.420 |
1.4 |
4900 |
1800×1255×1490 |
1920×1400×2000 |
|
2000 |
3.735 |
15.300 |
1.2 |
4900 |
1940×1255×1590 |
2050×1450×2130 |
|
2500 |
4.500 |
18.180 |
1.2 |
5650 |
2060×1255×1660 |
2170×1450×2230 |
|
|
注:容量200kVA及以下不帶風機,否則在訂貨時需闡明。本表之外的規格和特殊要求可聯系洽談。 |
額定容量
(kVA) |
電壓組合(kV) |
聯結
組
標號 |
短路
阻抗
(%) |
損耗(kW) |
空載
電流
(%) |
重量
(kg) |
外形尺寸(mm)
長(L)×寬(B)×高(H) |
規矩(mm)
縱向×橫向 |
保護外殼尺寸(mm)
長(L)×寬(B)×高(H) |
高
壓 |
分接
范圍 |
低
壓 |
空
載 |
負
載 |
|
200 |
11
10.5
10
6.3
6 |
±5%
或
±2×
2.5% |
0.4 |
Yyn0 |
4.0 |
0.610 |
2.470 |
1.5 |
1625 |
1320×800×1220 |
660×660 |
1600×1650×1720 |
|
250 |
0.710 |
2.660 |
1.3 |
1765 |
1380×800×1260 |
1600×1650×1760 |
|
315 |
0.890 |
3.410 |
1.2 |
2020 |
1380×800×1310 |
1600×1750×1810 |
|
400 |
0.970 |
3.960 |
1.2 |
2220 |
1390×850×1440 |
820×910 |
1800×1750×1940 |
|
500 |
1.190 |
4.730 |
1.2 |
2555 |
1400×960×1520 |
1800×1750×2020 |
|
630 |
1.300 |
5.940 |
1.1 |
2880 |
1460×1000×1600 |
1800×1750×2150 |
|
630 |
1.190 |
6.160 |
1.1 |
3005 |
1520×1000×1410 |
1800×1750×1960 |
10kV級SCBZ10系列 |
|
|
|
主要技術參數 |
|
10kV級SCZB10系列 |
額定容量
(kVA) |
電壓組合(kV) |
聯結
組
標?/TD> |
短路
阻抗
(%) |
損耗(kW) |
空載
電流
(%) |
重量
(kg) |
外形尺寸(mm)
長(L)×寬(B)×高(H) |
規矩(mm)
縱向×橫向 |
外形尺寸(mm)
長(L)×寬(B)×高(H) |
高
壓 |
分接
范圍 |
低
壓 |
空
載 |
負
載 |
|
800 |
11
10.5
10
6.3
6 |
±5%
或
±2×
2.5% |
0.4 |
Yyn0
或
Dyn11 |
6 |
1.460 |
7.260 |
1.0 |
3320 |
1570×1000×1580 |
820×910 |
2200×1850×2130 |
|
1000 |
1.680 |
8.360 |
1.0 |
3780 |
1640×1000×1700 |
2200×1850×2250 |
|
1250 |
2.160 |
10.010 |
0.9 |
4530 |
1700×1255×1820 |
2200×1850×2370 |
|
1600 |
2.490 |
12.100 |
0.9 |
5140 |
1800×1255×1980 |
1070×1205 |
2200×1850×2530 |
|
2000 |
2.920 |
14.600 |
0.8 |
6200 |
1940×1255×2110 |
2300×1900×2660 |
|
2500 |
3.460 |
17.400 |
0.8 |
7570 |
2100×1255×2350 |
2400×1950×2750 |
|
|
10kV級SCB10系列 |
額定容量
(kVA) |
電壓組合(kV) |
聯結
組
標號 |
短路
阻抗
(%) |
損耗(kW) |
空載
電流
(%) |
重量
(kg) |
外形尺寸(mm)
長(L)×寬(B)×高(H) |
規矩(mm)
縱向×橫向 |
保護外殼尺寸(mm)
長(L)×寬(B)×高(H) |
高
壓 |
分接
范圍 |
低
壓 |
空
載 |
負
載 |
|
30 |
11
10.5
10
6.3
6 |
±5%
或
±2×
2.5% |
0.4 |
Yyn0 |
4.0 |
0.195 |
0.71 |
2.5 |
340 |
780×450×790 |
400×400 |
900×900×1080 |
|
50 |
0.275 |
0.950 |
2.2 |
430 |
840×450×855 |
1000×900×1150 |
|
80 |
0.375 |
1.385 |
2.1 |
560 |
900×600×885 |
550×550 |
1060×1000×1180 |
|
100 |
0.405 |
1.580 |
1.9 |
720 |
920×600×900 |
1080×1000×1200 |
|
125 |
0.475 |
1.895 |
1.8 |
830 |
980×600×960 |
1140×1000×1260 |
|
160 |
0.550 |
2.140 |
1.8 |
940 |
1040×710×1000 |
660×660 |
1240×1050×1300 |
|
200 |
0.630 |
2.540 |
1.6 |
1250 |
1070×710×1200 |
1270×1050×1450 |
|
250 |
0.730 |
2.770 |
1.5 |
1450 |
1140×710×1245 |
1340×1050×1550 |
|
315 |
0.890 |
3.485 |
1.4 |
1600 |
1180×710×1300 |
1360×1050×1600 |
|
400 |
0.990 |
4.010 |
1.4 |
1980 |
1380×960×1425 |
820×910 |
1540×1150×1720 |
|
500 |
1.175 |
4.910 |
1.3 |
2300 |
1400×960×1515 |
1570×1150×1810 |
|
630 |
1.360 |
5.910 |
1.3 |
2570 |
1440×960×1595 |
1610×1150×1900 |
|
630 |
Yyn0
或
Dyn11 |
6 |
1.315 |
5.995 |
1.2 |
2550 |
1500×960×1405 |
1660×1150×1700 |
|
800 |
1.540 |
6.990 |
1.2 |
2810 |
1560×960×1575 |
1680×1150×1870 |
|
1000 |
1.790 |
8.170 |
1.1 |
3210 |
1640×960×1685 |
1750×1200×1980 |
|
1250 |
2.115 |
9.750 |
1.1 |
3400 |
1700×1255×1815 |
1070×1205 |
1850×1400×2120 |
|
1600 |
2.480 |
11.800 |
1.0 |
4150 |
1800×1255×1980 |
1920×1400×2280 |
|
2000 |
3.360 |
14.535 |
0.9 |
5600 |
1940×1255×2110 |
2050×1450×2420 |
|
2500 |
4.050 |
17.270 |
0.8 |
6300 |
2060×1255×2350 |
2170×1450×2750 |
|
|
注:本表之外的規格和特殊要求可聯系洽談。 |